插装方向流量控制盖板 KCG-025

PDF下载

描述

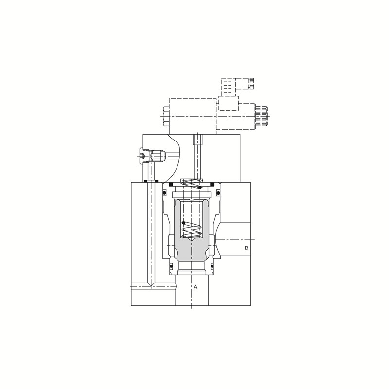
插装方向流量控制盖板

液压原理图

联系我们

展开全部

联系我们